34
$385,000 Sale
Listed 2 hours ago
67 KINGSBURY SQUARE Square SW Unit# 411, #411
· 1
· 1.0
· 1
· 606
Key Facts
Key facts for 67 KINGSBURY SQUARE Square SW Unit# 411, #411
Property Type
Condo, Apartment
Parking
Garage: No, 1 parking
MLS #
40777430
Size
606 sqft
Basement
None
Listed on
-
Lot size
-
Tax
-
Days on Market
-
Year Built
2012
Maintenance Fee
$252.05/mo
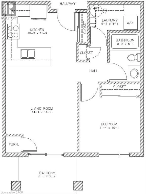
Description
Welcome to 67 Kingsbury Square, Unit 411! A beautifully renovated top-floor condo in one of Guelph’s most convenient south-end communities. This bright 1 bedroom suite offers an open concept living and dining area with modern finishes, a stylish upgraded kitchen, the large window & sliding doors all...ows natural lighting to fill the living space. Located on the top floor of a quiet, well managed 4 storey building, this unit offers both privacy and comfort with a covered balcony, in-suite laundry, owned water softener, and low monthly condo fees. Enjoy the unbeatable location, walk to grocery stores, restaurants, fitness centres, banks, and movie theatres, or take a direct bus to the University of Guelph. Quick access to Highway 6 and the 401 makes commuting to Kitchener-Waterloo, Cambridge, Milton, or the GTA a breeze. Perfect for first-time buyers, investors, or down-sizers looking for a move-in-ready home in a growing, highly desirable neighbourhood. (id:10452)
Similar Properties (No results)
Room Types
4pc Bathroom
-
Dimensions 5'1'' x 8'2''
41.51 sqft
Kitchen
-
Dimensions 11'9'' x 10'2''
119.46 sqft
Laundry room
-
Dimensions 4'4'' x 6'5''
27.81 sqft
Listing courtesy of: RE/MAX REAL ESTATE CENTRE INC. BROKERAGE-3
This REALTOR.ca listing content is owned and licensed by REALTOR® members of The Canadian Real Estate Association.