39
$839,900 Sale
Listed 4 hours ago
101 LYON STREET
· 3+2
· 3.0
· 8
· 1500 - 2000
Key Facts
Key facts for 101 LYON STREET
Property Type
House, House
Parking
Garage: Yes, 8 parking
MLS #
X12452539
Size
1500 - 2000 sqft
Basement
N/A
Listed on
-
Lot size
-
Tax
-
Days on Market
-
Year Built
-
Maintenance Fee
-
Description
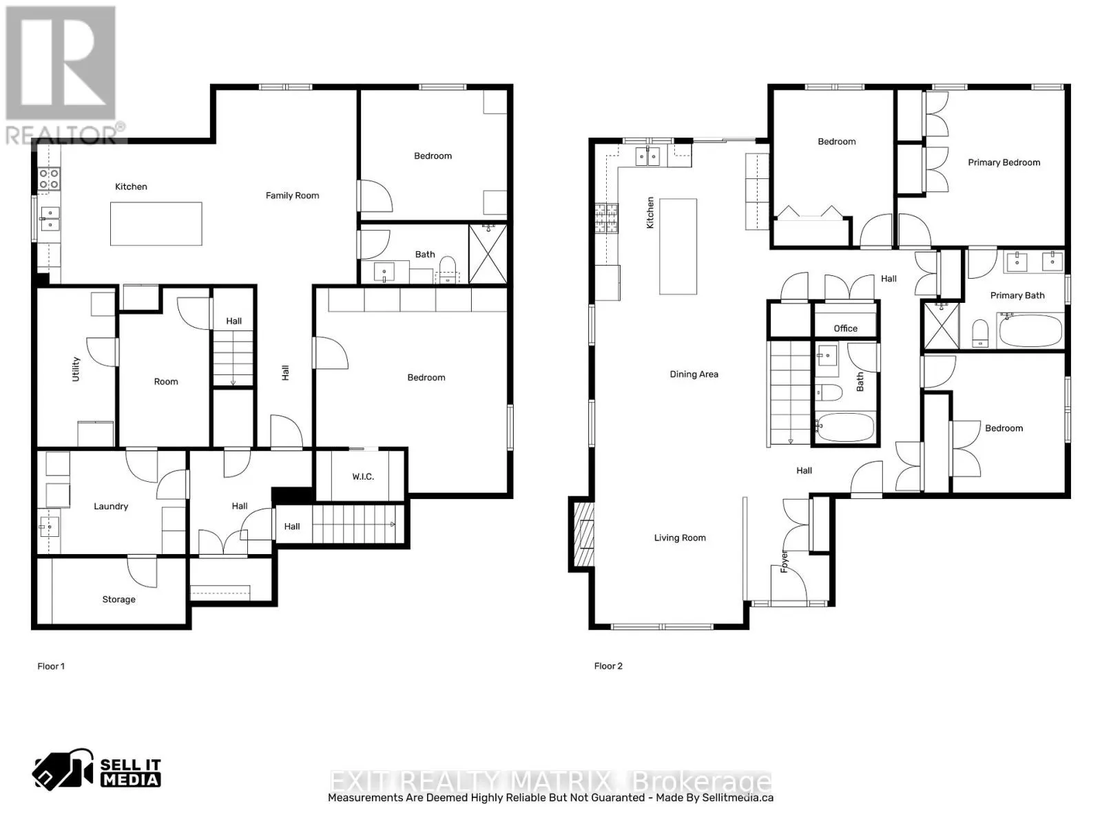
Magazine-Worthy Bungalow with Designer In-Law Suite on a Prime Corner Lot! This stunning, meticulously crafted bungalow is a true showstopper, upgraded throughout with sleek, modern design and luxurious finishes. Set on a fully fenced corner lot in a sought-after location, this property offers not o...nly exceptional style but unbeatable versatility. The main level showcases a bright, open-concept layout with 3 spacious bedrooms and 2 beautifully appointed bathrooms featuring quartz countertops. The elegant living room centers around a cozy fireplace, while the dining area flows seamlessly into the heart of the home: a designer kitchen. This stunning culinary space features quartz countertops with a waterfall-edge island, smart storage, a built-in bar fridge, and high-end finishes, perfect for both everyday living and entertaining in style. The fully finished lower level boasts a gorgeous in-law suite with its own private entrance. Designed with the same modern flair, it includes a spacious open-concept kitchen, dining, and living area, 2 generous bedrooms and a full bathroom, ideal for extended family, guests, or rental income. Step outside to enjoy a 14' x 14' deck complete with an electric awning for all-weather comfort, along with an expansive yard that's perfect for relaxing, hosting, or soaking up the sun. The oversized driveway and heated garage provide ample parking and year-round convenience. Located just minutes from top-rated schools, parks, scenic trails, and local amenities, this one-of-a-kind home offers the ultimate blend of luxury, comfort, and function. A rare opportunity you won't want to miss! (id:10452)
Similar Properties (No results)
Room Types
Bedroom
-
Dimensions 3.58 m x 3.56 m
137.18 sqft
Bedroom
-
Dimensions 3.72 m x 3.32 m
132.94 sqft
Bedroom
-
Dimensions 3.97 m x 3.04 m
129.91 sqft
Listing courtesy of: EXIT REALTY MATRIX
This REALTOR.ca listing content is owned and licensed by REALTOR® members of The Canadian Real Estate Association.